Displaying: of 1

Agent Details

Steven Tam

Share

Modern Family Home in Spring Farm - Land & House Package

$1,035,200

Lot 5 Daisy Street, Spring Farm

4
2
2

Profile

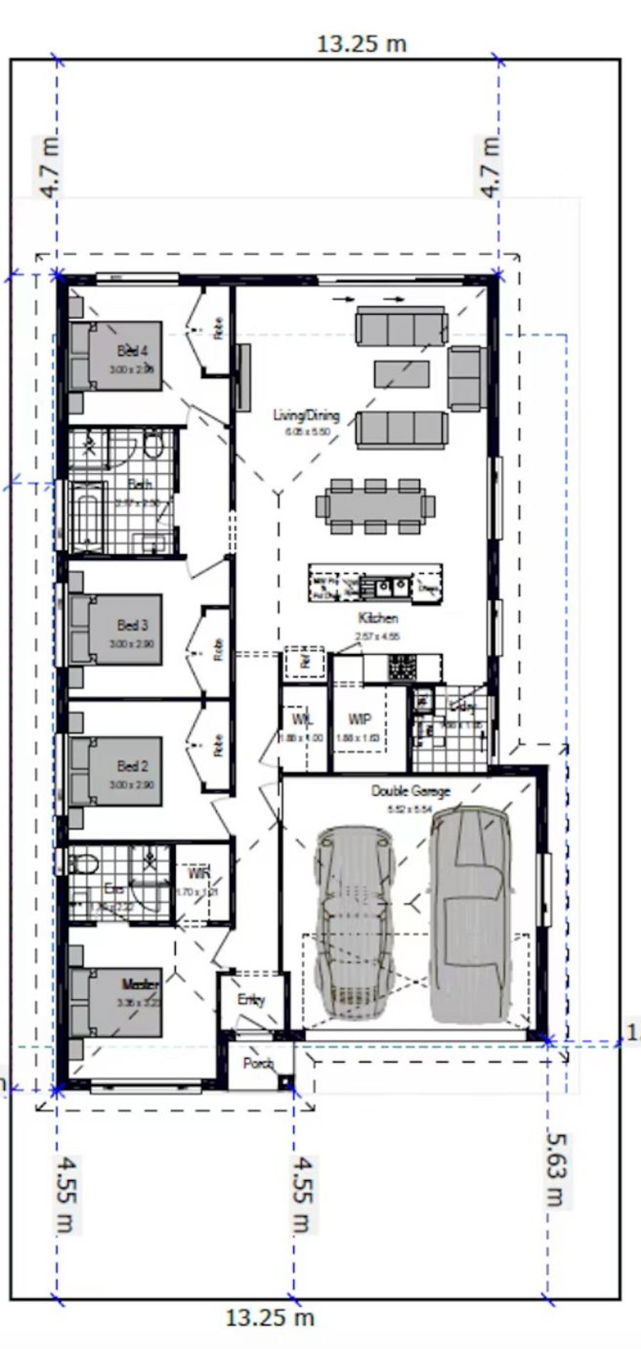
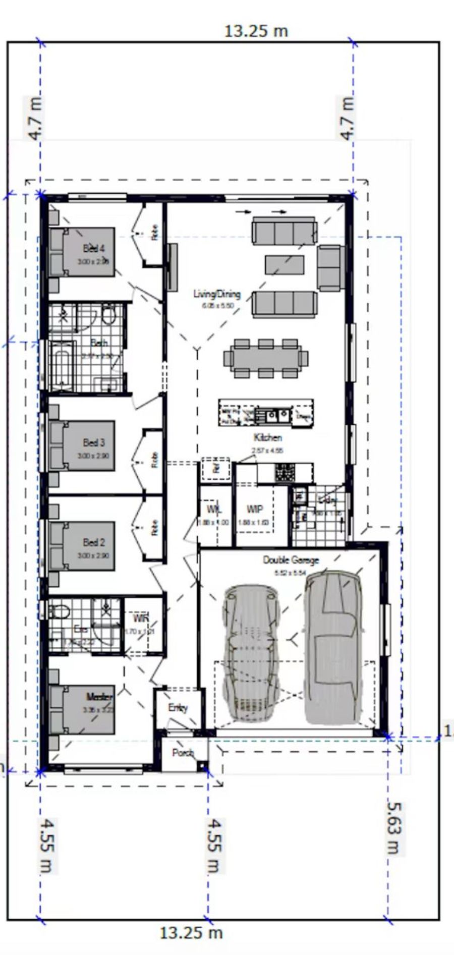
Step into comfort and convenience with this stylish 4-bedroom, 2-bathroom home on a 357m² block in the heart of Spring Farm. Designed for easy living, the open-plan layout flows seamlessly from the kitchen to the living and dining areas, with a double garage and private backyard perfect for growing families or savvy investors.

Key Features
- Spacious master suite with walk-in robe and ensuite
- Built-in robes in all bedrooms
- Central kitchen with walk-in pantry
- Double garage with internal access
- Wide frontage and landscaped yard

Prime Location
- Minutes to Spring Farm Shopping Centre, Woolworths, public schools and local cafés
- Close to Camden and Narellan town centres
- Easy access to schools, parks, and public transport
- Approx. 15 mins to Campbelltown Station and Macarthur Square

Inclusion
- BASIX
- Plain concrete driveway up to 60m2 - excludes footpath
- Actron single phase ducted air-conditioning unit
- 2590mm high ceilings to ground floor only
- Full height tiling to Bathroom and Ensuite only
- 2400mm high overhead kitchen wall cabinetry
- Dishwasher
- Designer Square Double Bowl Lay-on Sink

Land is to be registered 2026

Please contact 0423398500 for further information.

Features

21569023
Property ID
4
Bedrooms
2
Bathrooms
2
Garage
357 sqm approx.
Land Size
Air Conditioning
Built In Robes

Send Enquiry

Your Details
Your Enquiry
  1. Please describe how we can be of assistance to you.

  2.  

    Would you like to join our mail list?

Submit